3D Modelling
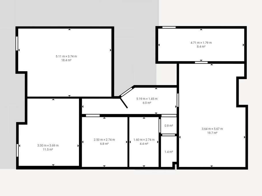
In most cases a 3D model can be surveyed in one day. A full 3D model will be generated for walk around in 4k resolution. The model will also generate accurate floor plans for every room.




In most cases a 3D model can be surveyed in one day. A full 3D model will be generated for walk around in 4k resolution. The model will also generate accurate floor plans for every room.


